Page suivante
Page précédente
Juan les Pins (06160)

Appartement 1 pièce(s) 1 chambre(s) 29.5 m²

1
Ascenseur
1
Réf V10000087

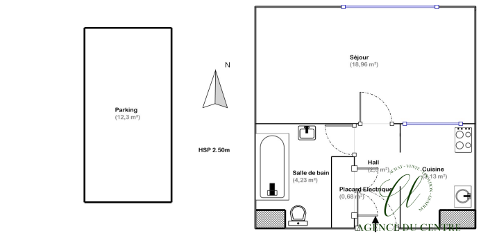
Montée Marie-Antoinette - Vendu loué - Situé à proximité de toutes les commodités, L'AGENCE DU CENTRE vous propose à la vente cet appartement T1 disposant d'une entrée avec placard, cuisine indépantante, salle de bain avec Wc et d'une pièce principale d'environ 20m² avec espace nuit. Très beau potentiel - Idéal pour une investissement locatif - profession libérale autorisée.

Possibilité d'acheter un parking en sus au sein de la résidence.


Les informations sur les risques auxquels ce bien est exposé sont disponibles sur le site Géorisques

Bilan énergétique

Diagnostics énergetiques
A propos de ce bien Caractéristiques de ce bien
  • Surface 29,50 m²
  • carrez 29,50 m²
  • séjour 18 m²
  • 1 chambre(s)
  • 1 salle(s) de bain
  • construit en 1964
  • cuisine séparée (équipée)
  • 1 parking(s)
  • exposition Nord-Ouest
  • 5 étage(s)
  • ascenseur
  • vue Cours intérieure
  • interphone

Composition

Composition de ce bien

Rez-de-chaussée

  • chambre
  • salle de bain 4.23 m²
  • salon/sejour 18.96 m²
  • cuisine 3.13 m²

Financier

Informations financières
Les honoraires d'agence seront intégralement à la charge du vendeur  
Charges 79 €
Taxe foncière annuelle 625 €

Simulation

Calcul des mensualités
* Champs obligatoires
L’AGENCE DU CENTRE Agence